Pripuz će u centru Zagreba graditi neboder od 20 katova, evo kako mu je to uspjelo
GRAD ZAGREB 4. je rujna izdao građevinsku dozvolu za izgradnju poslovnog nebodera s čak 20 katova na križanju Miramarske ceste i Bednjanske ulice u centru Zagreba. Dozvola je izdana tvrtki Miramare centar koja je, prema registru stvarnih vlasnika, u stopostotnom vlasništvu Petra Pripuza.
Kako je Pripuz uopće došao do ove lokacije i prava na gradnju zgrade visoke 80 metara? Krenimo redom.
Ljudi bliski Pripuzu od početka u projektu
Prema sudskom registru, jedini osnivač tvrtke Miramare centar krajem 2000. godine bila je tvrtka Saxum, iza koje je stajao odvjetnik Davor Galetović, povezan s Nikicom Jelavićem i Zoranom Pripuzom, ali i s Petrom Pripuzom putem tvrtke Tutus trgovina, koja danas nije aktivna.
Miramare centar kao investitor i raspisivač natječaja nije u svom vlasništvu imao sve parcele na kojima se imao izgraditi taj Poslovni centar. Zemljište za gradnju nebodera u početku je bilo u vlasništvu Grada Zagreba i drugih privatnih vlasnika, a Miramare centar godinama je otkupljivao pojedine manje parcele. Dio nekretnina na uglu otkupljivala je i danas ugašena tvrtka Pižole, koju je osnovao Branislav Pejović, Pripuzov partner iz Beograda,da bi kasnije završile u vlasništvu Miramare centra.
Kasnije je Miramare centar preuzeo Vlado Leko, nećak poznatog hotelijera Anđelka Leke, te pokojni Slobodan Čimbur, tada vlasnik restorana Baltazar. Naime, tvrtka je 2009. godine iz d.o.o. prešla u dioničko društvo te dolazi do promjene vlasničke strukture.
Pripuzovo preuzimanje tvrtke
Prije službene odluke o proglašenju privatnog projekta gradskim projektom 2019. godine, Miramare centar kao tvrtka nije dobro financijski stajala. Još 2017. Porezna uprava je tražila stečaj zbog duga od 2,3 milijuna kuna, koji je 2020. narastao na 2,6 milijuna kuna. Dug prema državi bio je vidljiv u zemljišnim knjigama.
Godine 2020. tvrtka je imala gubitak od 11.254 eura, a 2021. godine gubitak od 239.619 eura, s blokiranim računom i statusom poreznog dužnika. Promjena vlasničke strukture Miramare centra dogodila se 2021., kada je tvrtka iz dioničkog društva postala društvo s ograničenom odgovornošću.
Od 2021. vlasnik Miramare Centra je tvrtka Vergo projekti i u stopostotnom je vlasništvu Petra Pripuza. Nakon promjene vlasništva zabilježen je gubitak od 257.312 eura, u 2023. gubitak od 136.040 eura, a prošle godine prvi put dobit od 23.396 eura.
Miramare centar je od 2015. bio opterećen kreditom banke od 1,8 milijuna eura, koji je u cijelosti isplaćen 2022 kada je tvrtu preuzeo Pripuz. Dug prema državi od 2,6 milijuna kuna izbrisan je u ožujku 2023. Od studenog 2023. na parceli gdje se planira neboder, upisan je teret kredita koji iznosi 7,5 milijuna eura.
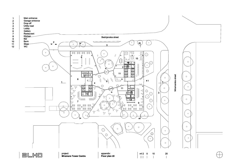
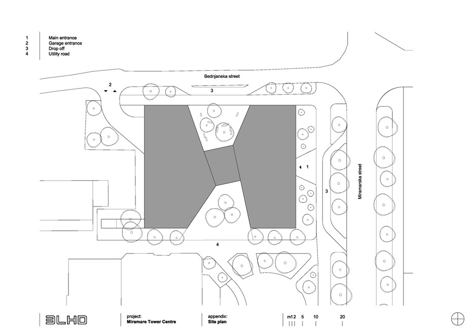
Natječaj 2009. godine dobio Studio 3LHD
Izgradnja na uglu Miramarske i Bednjanske, u blizini Botaničkog vrta i Fakulteta elektrotehnike i računarstva, spominjala se još prije više od 20 godina. U početku je prema GUP-u ondje trebala biti zgrada od sedam katova, a izmjenama GUP-a iz 2007., za vrijeme Milana Bandića, omogućena je gradnja od 20 katova.
Iako vlasništvo nad parcelama nije bilo do kraja riješeno, odnosno objedinjeno pod jednim vlasnikom, 2009. je proveden urbanističko-arhitektonski natječaj za Poslovni centar Miramarska-Bednjanska u Zagrebu. Organizator i provoditelj bilo je Društvo arhitekata Zagreba (DAZ), a natječaj je raspisala tvrtka Miramare centar koja je bila i investitor natječaja.
Na taj natječaj stiglo je 26 radova, a natječaj je dobila tvrtka 3LHD. Tada je definiran izgled zgrade koji bi se danas, u slučaju izgradnje, trebao realizirati.
Rezultati arhitektonskog natječaja objavljeni su 30. svibnja 2009. godine, a već 10. lipnja te godine tvrtka Miramare centar, zastupana po tvrtki "Studio 3LHD", zatražila je izdavanje lokacijske dozvole za projekt. Prva lokacijska dozvola izdana je u prosincu 2009. godine.
U toj lokacijskoj dozvoli stajalo je kako se zahvat izvodi na dvije čestice koje su u vlasništvu grada Zagreba, no da je pribavljena načelna suglasnost gradonačelnika Bandića za izdavanje lokacijske dozvole. Do tih čestica će tvrtka Miramare centar doći nekoliko godina kasnije, i to 2014. godine, kroz nagodbu s gradom Zagrebom.
Naime, Grad Zagreb je radi rekonstrukcije i izgradnje ceste u centru Zagreba mijenjao zemljišta s društvom Miramare centar d.d. koje je tako napokon steklo uvjete da može početi razvijati svoja tada dva ključna projekta: projekt Sloboština uredske poslovne građevine na devet katova s poliklinikom i caffe-barom te Projekt Miramare, odnosno neboder od 20 katova. Tada se pisalo da je u toj nagodbi lošije prošao grad Zagreb.
Bandić je privatni projekt izgradnje nebodera proglasio gradskim projektom
Ključna godina za realizaciju projekta, uz 2007. i izmjene GUP-a te 2014. i nagodbu s Gradom Zagrebom, bila je svakako i 2019., kada je Gradska skupština u lipnju donijela odluku o realizaciji gradskog projekta "ugao Miramarske i Bednjanske ulice". Tada je, naime, taj privatni projekt proglašen gradskim projektom. S obzirom na to da je proglašen gradskim projektom, za taj projekt nisu više vrijedila uobičajena pravila.
Odlukom Grada Zagreba definirano je kako taj projekt zahvaća prostor veličine oko 4.037 m², na sjeveru omeđen Bednjanskom, a na istoku Miramarskom ulicom. Definirano je da visina građevine ne smije prelaziti 80,5 metara, maksimalan broj podzemnih etaža je četiri, a nadzemnih dvadeset.
Zahvaljujući Bandićevim odlukama projekt se nije mogao zaustaviti
Izgradnja 20 katova u središtu Zagreba nije nešto što odobrava Tomaševićeva gradska uprava, no teško će se moći zaustaviti ovaj projekt. Naime, kako je objašnjeno u proceduri donošenja novog GUP-a u gradu Zagrebu, svaka donesena odluka o realizaciji gradskog projekta, za područja na kojima je na temelju Odluke o donošenju Generalnog urbanističkog plana Grada Zagreba bila omogućena izrada i realizacija gradskog projekta, važeća je te se sukladno istoj mogu ishoditi odgovarajući akti za provedbu zahvata u prostoru. No, postoji i izuzetak.
"Ako se u odgovarajućoj proceduri na temelju pokrenutog postupka preispitivanja opravdanosti utvrdi neopravdanost realizacije pojedinog gradskog projekta za koji je donesena Odluka o realizaciji gradskog projekta, tada je potrebno provesti i zasebnu proceduru stavljanja izvan snage navedene Odluke", stoji u očitovanju gradske vlasti vezano za gradske projekte Milana Bandića u koji svakako spada Pripuzov neboder.
Gradonačelnik Zagreba Tomislav Tomašević, komentirajući ovaj slučaj, istaknuo je da je dozvolu za neboder još 2019. godine, za vrijeme Milana Bandića, dobila tvrtka koju je Pripuz kasnije kupio.
Naglasio je kako je taj projekt prethodna Gradska skupština proglasila gradskim projektom, čime je bio izuzet od pravila GUP-a te ga nije bilo moguće zaustaviti.
"To se više neće moći dogoditi, jer izmjenama GUP-a gradski projekti više neće moći biti privatne, već isključivo javne investicije", naglasio je Tomašević.
Nitko nije htio komentirati
U pripremi ovog članka pokušali smo kontaktirati glavne aktere, a to su bivši i sadašnji vlasnici tvrtke Miramare centar te Studio 3LHD, no nisu htjeli sudjelovati, odnosno davati izjave ili pojašnjenja.
*********
Istraživačko novinarstvo je najskuplje i financijski potpuno neisplativo novinarstvo. Ako vam je stalo do borbe za transparentnost, podržite Index Istrage donacijom. Sav novac prikupljen kroz Index Istrage bit će utrošen jedino i isključivo na najbolje istraživačke novinare i 100% neovisno i odvažno istraživačko novinarstvo.
Opširnije: https://www.istrage.hr/doniraj
Originalno objavljeno na Index Istrage

bi Vas mogao zanimati
Izdvojeno
Pročitajte još
bi Vas mogao zanimati